0

APPARTEMENT T3 – INVESTISSEURS – ETOILE SUR RHONE - RESIDENCE NEUVE – DISPOSITIF PLS

Étoile-sur-Rhône (26800)
Réf : 13

Spécial Investisseurs - A vendre un appartement de type T3 sous contrat de location - Résidence Les Terrasses de Stella – Lotissement Albert Jacquart à ETOILE SUR RHONE avec un garage et une place de parking, dans résidence neuve, de standing, fermée et sécurisée.

Ce bien est vendu loué avec contrat de location en cours.

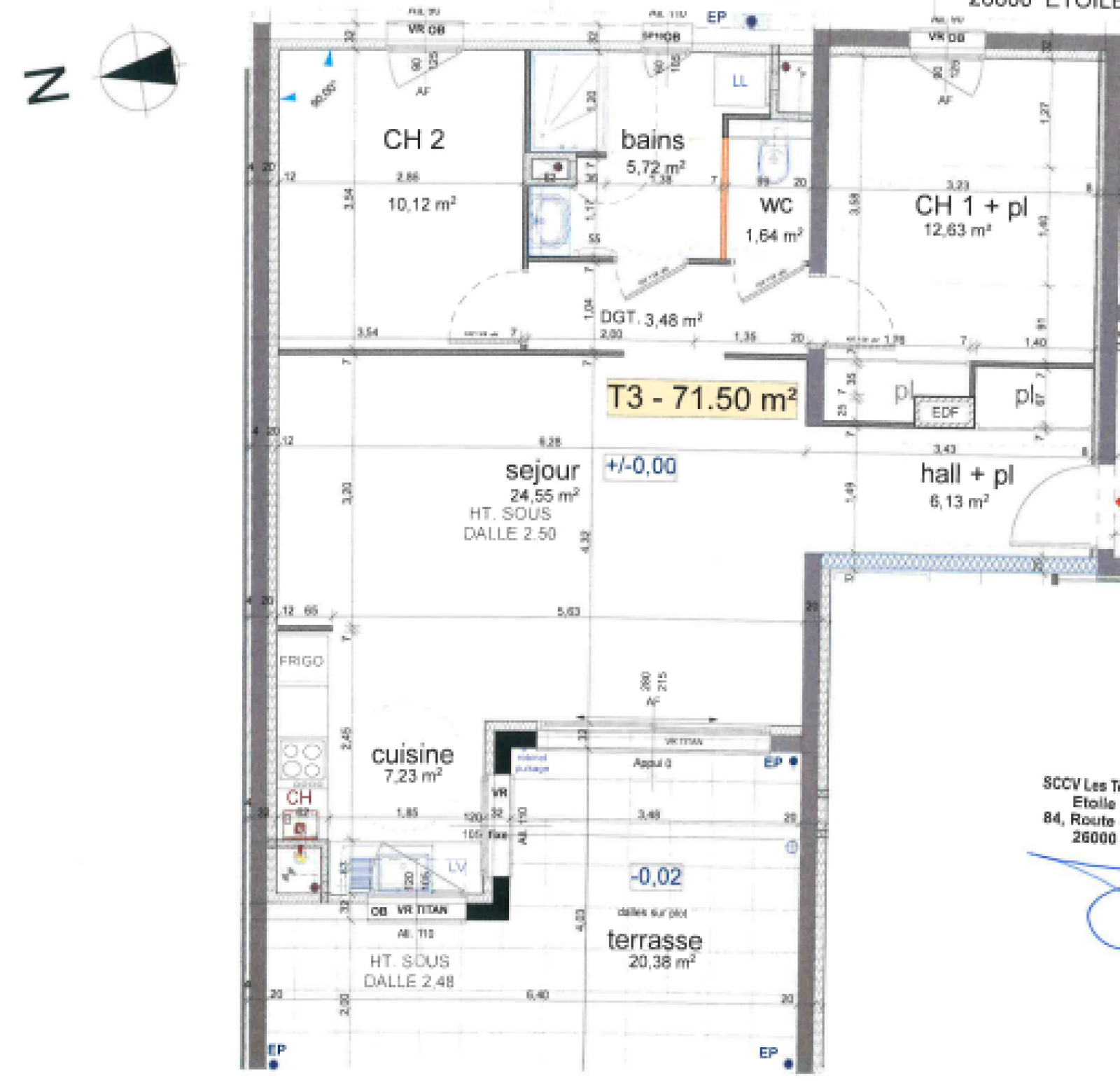
Au rez de chaussée, un appartement de type T3 d’une surface de 71.50m² comprenant un hall avec placard, un séjour/cuisine, un dégagement, deux chambres dont une avec placard, une salle d’eau, un WC séparé, une terrasse de 20m² et un jardin privatif de 49m².

A l’entrée d’Etoile-sur-Rhône, route de Beauvallon, à moins de 10 kilomètres de Valence, vous bénéficierez d’un emplacement idéal dans l’un des villages les plus côté de la Drôme avec une vue sur l’Ardèche et le château de Crussol ainsi que de la proximité des commerces (dans la même rue, se situe le nouveau pôle de commerces de proximité du village avec boulangerie, boucherie, épicerie fine, tabac-presse, et coiffeur).

Ascenseur – garage privé en sous-sol avec ouverture motorisée et sécurisée – place de parking privative – Conformité RT 2012 et performance acoustique - Chauffage au sol individuel au gaz – Chauffage et production d’eau chaude par chaudière individuelle gaz à condensation – Perméabilité à l’air des logements - vidéophone – cuisine équipée AVIVA – Hall d’entrée et espace commun des appartements réalisés par un architecte d’intérieur - Résidence et aménagement extérieur soigneusement traités.

Emissions de gaz à effet de serre : 9 kg CO2/m²/an

Les informations sur les risques auxquels ce bien est exposé sont disponibles sur le site Géorisques : www.georisques.gouv.fr

Bien proposé par Cyril PAILHARET (EI) Agent Commercial Numéro RSAC 824 961 783 AUBENAS

Agence FLEXIMO - OLAGNON IMMOBILIER

Annonce mise en ligne par Laëtitia OLAGNON Carte professionnelle « Transactions sur immeubles et fonds de commerce » N°CPI07022021000000013, délivrée par la CCI de de l’Ardèche.

Prix du bien
Pièce(s) 3
Chambre(s) 2

Caractéristiques du bien

Caractéristiques Valeurs
Code postal 26800
Surface habitable (m²) 71,50 m²
surface terrain 49 m²
Surface loi Carrez (m²) 71,50 m²
Nombre de chambre(s) 2
Nombre de pièces 3
Ascenseur OUI
Vue Oui
Nb de salle d'eau 1
Cuisine Américaine
Type de cuisine Equipée
Mode de chauffage Gaz
Type de chauffage Au sol
Format de chauffage Individuel
Interphone OUI
Visiophone OUI
Balcon NON
Terrasse OUI
Murs mitoyens 2
Nombre de garage 1
Cave NON
Nombre de parking 1
Exposition Sud
Année de construction 2022
Terrain arboré OUI

Infos financières

Caractéristiques Valeurs
Les honoraires d'agence seront intégralement à la charge du vendeur  
Ces biens peuvent vous intéresser